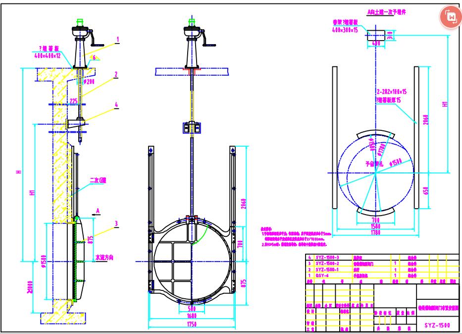
SYZ1500鑄鐵圓閘門安裝圖下載
SYZ1500鑄鐵圓閘門安裝圖

服務熱線13852217951
SYZ1500鑄鐵方閘門安裝圖紙下載 ,我們提供DWG圖紙下載查閱,CAD軟件可查閱。
圖紙下載:
SYZ-1500鑄鐵鑲銅圓閘門.rar

SYZ1500鑄鐵圓閘門毛坯的鑄造流程:
1、開爐前,按照國家標準牌號進行爐料的配料,同時做好其它準備。
2、當爐前鐵水基本達到出水溫度時,進行爐前取樣,送至理化實驗室進行爐前化驗,符合相關國家標準牌號的化學成份后,方可進行鐵水的澆注。
3、毛坯鑄造完成并進行清砂處理后,檢驗合格的所有閘門、閘框等鑄件進行相應熱處理,消除鑄造內應力后進入后道工序進行機械加工。
本文來自于:www.mldq.com.cn